5 300 000 ₽
74 753 ₽/м²
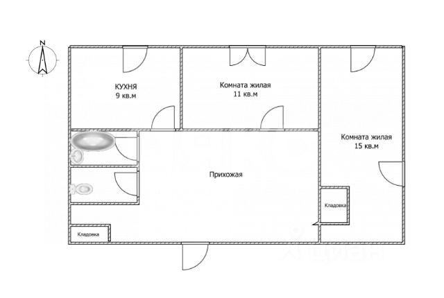
Трехкомнатная двухуровневая квартира в поселке Победа сочетает преимущества загородного проживания с городским комфортом. Общая площадь жилья позволяет комфортно разместить семью, а двухуровневая планировка обеспечивает четкое зонирование пространства. Две комнаты находятся в отличном состоянии с качественным косметическим ремонтом, третья требует обновления, что дает возможность адаптировать ее под конкретные нужды — кабинет, детскую или гостевую зону. Совмещенный санузел отделан кафелем и оборудован душевой кабиной, в холле расположена вместительная кладовая для хранения вещей.
На приусадебном участке место разместить зону отдыха, барбекю или небольшой огород, что дает дополнительную возможность для более комфортного проживания, чем в квартире в многоэтажном доме.
Так же есть собственный гараж и место для авто во дворе.
Квартира расположена в непосредственной близости к общественному транспорту, магазинам, школа и детский сад в 5 минутах езды, горы в часе езды.
Звоните по всем во
Код пользователя: 177034
Номер в базе: 9597442







































































