














196 078 ₽/м²
Арт. 95090556 Эксклюзивное и ограниченное предложение! К Вашему вниманию студия в самом востребованном районе! Новый перспективный и быстро развивающийся ЖК "Яблоневый"! _________________________________________________ ___________ Просторная студия общей площадью 30, 6 квадратных метров расположена на комфортном пятом этаже. Дом сдан, заселен. Активные ремонтные работы давно позади! Это позволит Вам заехать и наслаждаться комфортной жизнью сразу! Остались считанные штрихи. В квартире выполнен качественный дизайнерский ремонт с использованием дорогих материалов. Эстетика и комфорт наполняют эту квартиру! Никаких вложений не требуется! Установлен водонагревательный котел, который просто незаменим в моменты отключения горячего водоснабжения. Есть балкон, где Вы можете обустроить зону отдыха, либо рабочую зону. По собственному желанию возможно сделать зонирование, комфортное для Вас! Квартира расположена в самом востребованном районе нашего города! Всегда высокий арендный спрос! Вся необходимая инфраструктура в пешей доступности - лицей, детский сад, кофейни, остановка общественного транспорта и прочее. Полностью облагороженная придомовая территория, с зонами для прогулок, отдыха. быстрый выход на сделку юридическое сопровождение безопасная сделка Напиши "шикарная студия" и я отправлю тебе видеообзор! _________________________________________________ _________ Идеальное вложение средств! Звони прямо сейчас! Не упусти возможность покупки!



265 000 ₽/м²
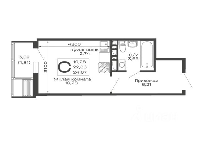
Арт. 102202974 Предлагаем вашему вниманию уютную квартиру-студию площадью 24 квадратных метра в современном доме. Этот квартира впечатляет не только размером, но и качественным ремонтом, выполненным с использованием высококачественных и долговечных материалов. Квартира полностью укомплектована техникой и мебелью, что добавляет комфорта и стиля. Она была создана для личного проживания, поэтому здесь все продумано до мелочей. Вы можете заехать и сразу наслаждаться уютом, поскольку все, что изображено на фотографиях, остается. К тому же квартира свободна от обременений, и никто не прописан, что упрощает процесс покупки. Особое внимание стоит уделить решению для удобного хранения: в коридор установлен стильный шкаф под потолок с встроенным холодильником в белом матовом исполнении, который гармонично дополняет интерьер. Эта квартира-студия — отличный выбор если вы ищете идеальное место для жизни или выгодные инвестиции в недвижимость. Звоните и записывайтесь на просмотр уже сегодня.

151 200 ₽/м²
Продаётся студия в строящемся доме (Литер 3), срок сдачи: II-кв. 2027, общей площадью 30.97 кв.м., на 3 этаже. РАСПОЛОЖЕНИЕ В 40 минутах от дома расположены такие природные достопримечательности, как предгорье Лаго-Наки, термальные источники, водопады Руфабго, канатная дорога в Даховской слободе, Хаджохская теснина, Азишская пещера и другие красоты. В 5 минутах от дома находится красивое озеро. Здесь приятно гулять, наслаждаясь красотой природы и чистым воздухом или заниматься спортом. В шаговой доступности действующая школа и детские сады, продуктовые и хозяйственные магазины, рынок, новая поликлиника. Достраивается школа в 5 минутах от дома на 1100 мест. Непосредственно на территории ЖК Предгорье Лаго-Наки скоро появятся коммерческие галереи с кафе, кулинарией, салонами красоты, пунктами выдачи интернет-заказов, отделениями банков и пр. Рядом с домом находится остановка общественного транспорта. ОТДЕЛКА В квартире вас ждет качественный ремонт под ключ: • Надежная металлическая входная дверь. • Дизайнерские межкомнатные двери цвета Дуб Сонома. • Матовые натяжные потолки. • Плотные виниловые обои пастельных тонов. • Панорамная дверь, стирающая грань между комнатой и балконом. • Витражное остекление балкона с бронзовой тонировкой, которая защищает от солнца и сохраняет вашу приватность. • Увеличенные на 20% окна, пропускающие больше света в квартиру. • Санузел под ключ: ванна с декоративным экраном, удобная раковина с пьедесталом, смесители, полотенцесушитель. На полу керамогранит. • Установлены все радиаторы, выключатели и счетчики. КОМФОРТ Благодаря тому, что фасад дома облицован плиткой с фактурой натурального камня, дом выглядит очень стильно и эстетично. Вы непременно оцените удобные входные группы на уровне земли - вам не придётся подниматься с коляской или с тяжелыми пакетами по ступенькам - всего пару шагов, и вы в подъезде возле лифта. Уютный двор с дизайнерским озеленением, рулонные газоны, клумбы с автополивом, современные детские и спортивные площадки с безопасным покрытием и много свободного пространства благодаря широкой посадке домов. ГИБКИЕ ВАРИАНТЫ ПРИОБРЕТЕНИЯ • ИПОТЕКА СЕМЕЙНАЯ • IT-ИПОТЕКА • РАССРОЧКА • НАЛИЧНЫЙ РАСЧЕТ (предоставляется скидка) • МАТЕРИНСКИЙ КАПИТАЛ • ВСЕ ВИДЫ СЕРТИФИКАТОВ Звоните сейчас и оставляйте заявку, пока действуют выгодные условия по ипотеке! А лучше приезжайте, посмотрите квартиру сами и вы точно в нее влюбитесь!



150 980 ₽/м²
Продается студия в новом ЖК "Лаго-Наки". Из окна вид открывается прямо на гору и озеро. Внутридворовая территория облагорожена, имеется современная детская площадка, стоянка для а/машин. Современный, светлый и просторный подъезд, с возможностью размещения детских колясок и велосипедов. Состояние квартиры хорошее. В квартире выполнен ремонт "от Застройщика", в ванной установлена сан.техника, в кухне-гостинной имеется плита и установлена раковина.Установлены счетчики холодной/горячей воды, регулируемая батарея, домофон.Балкон застеклен витражными окнами. Квартира может подойти как для проживания молодой семьи, так и для сдачи в аренду, либо с целью инвестирования. На площадке и в доме уже есть соседи! Пишите, звоните, с удовольствием ответим на все вопросы. Код пользователя: 170647 Номер в базе: 6759286



155 408 ₽/м²
Продаётся студия в строящемся доме (Литер 4), срок сдачи: II-кв. 2027, общей площадью 30.97 кв.м., на 3 этаже. РАСПОЛОЖЕНИЕ В 40 минутах от дома расположены такие природные достопримечательности, как предгорье Лаго-Наки, термальные источники, водопады Руфабго, канатная дорога в Даховской слободе, Хаджохская теснина, Азишская пещера и другие красоты. В 5 минутах от дома находится красивое озеро. Здесь приятно гулять, наслаждаясь красотой природы и чистым воздухом или заниматься спортом. В шаговой доступности действующая школа и детские сады, продуктовые и хозяйственные магазины, рынок, новая поликлиника. Достраивается школа в 5 минутах от дома на 1100 мест. Непосредственно на территории ЖК Предгорье Лаго-Наки скоро появятся коммерческие галереи с кафе, кулинарией, салонами красоты, пунктами выдачи интернет-заказов, отделениями банков и пр. Рядом с домом находится остановка общественного транспорта. ОТДЕЛКА В квартире вас ждет качественный ремонт под ключ: • Надежная металлическая входная дверь. • Дизайнерские межкомнатные двери цвета Дуб Сонома. • Матовые натяжные потолки. • Плотные виниловые обои пастельных тонов. • Панорамная дверь, стирающая грань между комнатой и балконом. • Витражное остекление балкона с бронзовой тонировкой, которая защищает от солнца и сохраняет вашу приватность. • Увеличенные на 20% окна, пропускающие больше света в квартиру. • Санузел под ключ: ванна с декоративным экраном, удобная раковина с пьедесталом, смесители, полотенцесушитель. На полу керамогранит. • Установлены все радиаторы, выключатели и счетчики. КОМФОРТ Благодаря тому, что фасад дома облицован плиткой с фактурой натурального камня, дом выглядит очень стильно и эстетично. Вы непременно оцените удобные входные группы на уровне земли - вам не придётся подниматься с коляской или с тяжелыми пакетами по ступенькам - всего пару шагов, и вы в подъезде возле лифта. Уютный двор с дизайнерским озеленением, рулонные газоны, клумбы с автополивом, современные детские и спортивные площадки с безопасным покрытием и много свободного пространства благодаря широкой посадке домов. ГИБКИЕ ВАРИАНТЫ ПРИОБРЕТЕНИЯ • ИПОТЕКА СЕМЕЙНАЯ • IT-ИПОТЕКА • РАССРОЧКА • НАЛИЧНЫЙ РАСЧЕТ (предоставляется скидка) • МАТЕРИНСКИЙ КАПИТАЛ • ВСЕ ВИДЫ СЕРТИФИКАТОВ Звоните сейчас и оставляйте заявку, пока действуют выгодные условия по ипотеке! А лучше приезжайте, посмотрите квартиру сами и вы точно в нее влюбитесь!















152 200 ₽/м²
Продаётся студия в строящемся доме (Литер 3), срок сдачи: II-кв. 2027, общей площадью 30.97 кв.м., на 10 этаже. РАСПОЛОЖЕНИЕ В 40 минутах от дома расположены такие природные достопримечательности, как предгорье Лаго-Наки, термальные источники, водопады Руфабго, канатная дорога в Даховской слободе, Хаджохская теснина, Азишская пещера и другие красоты. В 5 минутах от дома находится красивое озеро. Здесь приятно гулять, наслаждаясь красотой природы и чистым воздухом или заниматься спортом. В шаговой доступности действующая школа и детские сады, продуктовые и хозяйственные магазины, рынок, новая поликлиника. Достраивается школа в 5 минутах от дома на 1100 мест. Непосредственно на территории ЖК Предгорье Лаго-Наки скоро появятся коммерческие галереи с кафе, кулинарией, салонами красоты, пунктами выдачи интернет-заказов, отделениями банков и пр. Рядом с домом находится остановка общественного транспорта. ОТДЕЛКА В квартире вас ждет качественный ремонт под ключ: • Надежная металлическая входная дверь. • Дизайнерские межкомнатные двери цвета Дуб Сонома. • Матовые натяжные потолки. • Плотные виниловые обои пастельных тонов. • Панорамная дверь, стирающая грань между комнатой и балконом. • Витражное остекление балкона с бронзовой тонировкой, которая защищает от солнца и сохраняет вашу приватность. • Увеличенные на 20% окна, пропускающие больше света в квартиру. • Санузел под ключ: ванна с декоративным экраном, удобная раковина с пьедесталом, смесители, полотенцесушитель. На полу керамогранит. • Установлены все радиаторы, выключатели и счетчики. КОМФОРТ Благодаря тому, что фасад дома облицован плиткой с фактурой натурального камня, дом выглядит очень стильно и эстетично. Вы непременно оцените удобные входные группы на уровне земли - вам не придётся подниматься с коляской или с тяжелыми пакетами по ступенькам - всего пару шагов, и вы в подъезде возле лифта. Уютный двор с дизайнерским озеленением, рулонные газоны, клумбы с автополивом, современные детские и спортивные площадки с безопасным покрытием и много свободного пространства благодаря широкой посадке домов. ГИБКИЕ ВАРИАНТЫ ПРИОБРЕТЕНИЯ • ИПОТЕКА СЕМЕЙНАЯ • IT-ИПОТЕКА • РАССРОЧКА • НАЛИЧНЫЙ РАСЧЕТ (предоставляется скидка) • МАТЕРИНСКИЙ КАПИТАЛ • ВСЕ ВИДЫ СЕРТИФИКАТОВ Звоните сейчас и оставляйте заявку, пока действуют выгодные условия по ипотеке! А лучше приезжайте, посмотрите квартиру сами и вы точно в нее влюбитесь!



153 300 ₽/м²
Продаётся студия в строящемся доме (Литер 3), срок сдачи: II-кв. 2027, общей площадью 32.76 кв.м., на 1 этаже. РАСПОЛОЖЕНИЕ В 40 минутах от дома расположены такие природные достопримечательности, как предгорье Лаго-Наки, термальные источники, водопады Руфабго, канатная дорога в Даховской слободе, Хаджохская теснина, Азишская пещера и другие красоты. В 5 минутах от дома находится красивое озеро. Здесь приятно гулять, наслаждаясь красотой природы и чистым воздухом или заниматься спортом. В шаговой доступности действующая школа и детские сады, продуктовые и хозяйственные магазины, рынок, новая поликлиника. Достраивается школа в 5 минутах от дома на 1100 мест. Непосредственно на территории ЖК Предгорье Лаго-Наки скоро появятся коммерческие галереи с кафе, кулинарией, салонами красоты, пунктами выдачи интернет-заказов, отделениями банков и пр. Рядом с домом находится остановка общественного транспорта. ОТДЕЛКА В квартире вас ждет качественный ремонт под ключ: • Надежная металлическая входная дверь. • Дизайнерские межкомнатные двери цвета Дуб Сонома. • Матовые натяжные потолки. • Плотные виниловые обои пастельных тонов. • Панорамная дверь, стирающая грань между комнатой и балконом. • Витражное остекление балкона с бронзовой тонировкой, которая защищает от солнца и сохраняет вашу приватность. • Увеличенные на 20% окна, пропускающие больше света в квартиру. • Санузел под ключ: ванна с декоративным экраном, удобная раковина с пьедесталом, смесители, полотенцесушитель. На полу керамогранит. • Установлены все радиаторы, выключатели и счетчики. КОМФОРТ Благодаря тому, что фасад дома облицован плиткой с фактурой натурального камня, дом выглядит очень стильно и эстетично. Вы непременно оцените удобные входные группы на уровне земли - вам не придётся подниматься с коляской или с тяжелыми пакетами по ступенькам - всего пару шагов, и вы в подъезде возле лифта. Уютный двор с дизайнерским озеленением, рулонные газоны, клумбы с автополивом, современные детские и спортивные площадки с безопасным покрытием и много свободного пространства благодаря широкой посадке домов. ГИБКИЕ ВАРИАНТЫ ПРИОБРЕТЕНИЯ • ИПОТЕКА СЕМЕЙНАЯ • IT-ИПОТЕКА • РАССРОЧКА • НАЛИЧНЫЙ РАСЧЕТ (предоставляется скидка) • МАТЕРИНСКИЙ КАПИТАЛ • ВСЕ ВИДЫ СЕРТИФИКАТОВ Звоните сейчас и оставляйте заявку, пока действуют выгодные условия по ипотеке! А лучше приезжайте, посмотрите квартиру сами и вы точно в нее влюбитесь!









149 200 ₽/м²
Продаётся студия в строящемся доме (Литер 8), срок сдачи: IV-кв. 2026, общей площадью 31.6 кв.м., на 1 этаже. РАСПОЛОЖЕНИЕ В 40 минутах от дома расположены такие природные достопримечательности, как предгорье Лаго-Наки, термальные источники, водопады Руфабго, канатная дорога в Даховской слободе, Хаджохская теснина, Азишская пещера и другие красоты. В 5 минутах от дома находится красивое озеро. Здесь приятно гулять, наслаждаясь красотой природы и чистым воздухом или заниматься спортом. В шаговой доступности действующая школа и детские сады, продуктовые и хозяйственные магазины, рынок, новая поликлиника. Достраивается школа в 5 минутах от дома на 1100 мест. Непосредственно на территории ЖК Предгорье Лаго-Наки скоро появятся коммерческие галереи с кафе, кулинарией, салонами красоты, пунктами выдачи интернет-заказов, отделениями банков и пр. Рядом с домом находится остановка общественного транспорта. ОТДЕЛКА В квартире вас ждет качественный ремонт под ключ: • Надежная металлическая входная дверь. • Дизайнерские межкомнатные двери цвета Дуб Сонома. • Матовые натяжные потолки. • Плотные виниловые обои пастельных тонов. • Панорамная дверь, стирающая грань между комнатой и балконом. • Витражное остекление балкона с бронзовой тонировкой, которая защищает от солнца и сохраняет вашу приватность. • Увеличенные на 20% окна, пропускающие больше света в квартиру. • Санузел под ключ: ванна с декоративным экраном, удобная раковина с пьедесталом, смесители, полотенцесушитель. На полу керамогранит. • Установлены все радиаторы, выключатели и счетчики. КОМФОРТ Благодаря тому, что фасад дома облицован плиткой с фактурой натурального камня, дом выглядит очень стильно и эстетично. Вы непременно оцените удобные входные группы на уровне земли - вам не придётся подниматься с коляской или с тяжелыми пакетами по ступенькам - всего пару шагов, и вы в подъезде возле лифта. Уютный двор с дизайнерским озеленением, рулонные газоны, клумбы с автополивом, современные детские и спортивные площадки с безопасным покрытием и много свободного пространства благодаря широкой посадке домов. ГИБКИЕ ВАРИАНТЫ ПРИОБРЕТЕНИЯ • ИПОТЕКА СЕМЕЙНАЯ • IT-ИПОТЕКА • РАССРОЧКА • НАЛИЧНЫЙ РАСЧЕТ (предоставляется скидка) • МАТЕРИНСКИЙ КАПИТАЛ • ВСЕ ВИДЫ СЕРТИФИКАТОВ Звоните сейчас и оставляйте заявку, пока действуют выгодные условия по ипотеке! А лучше приезжайте, посмотрите квартиру сами и вы точно в нее влюбитесь!



160 900 ₽/м²
Продаётся студия в строящемся доме (Литер 3), срок сдачи: II-кв. 2027, общей площадью 26.53 кв.м., на 9 этаже. РАСПОЛОЖЕНИЕ В 40 минутах от дома расположены такие природные достопримечательности, как предгорье Лаго-Наки, термальные источники, водопады Руфабго, канатная дорога в Даховской слободе, Хаджохская теснина, Азишская пещера и другие красоты. В 5 минутах от дома находится красивое озеро. Здесь приятно гулять, наслаждаясь красотой природы и чистым воздухом или заниматься спортом. В шаговой доступности действующая школа и детские сады, продуктовые и хозяйственные магазины, рынок, новая поликлиника. Достраивается школа в 5 минутах от дома на 1100 мест. Непосредственно на территории ЖК Предгорье Лаго-Наки скоро появятся коммерческие галереи с кафе, кулинарией, салонами красоты, пунктами выдачи интернет-заказов, отделениями банков и пр. Рядом с домом находится остановка общественного транспорта. ОТДЕЛКА В квартире вас ждет качественный ремонт под ключ: • Надежная металлическая входная дверь. • Дизайнерские межкомнатные двери цвета Дуб Сонома. • Матовые натяжные потолки. • Плотные виниловые обои пастельных тонов. • Панорамная дверь, стирающая грань между комнатой и балконом. • Витражное остекление балкона с бронзовой тонировкой, которая защищает от солнца и сохраняет вашу приватность. • Увеличенные на 20% окна, пропускающие больше света в квартиру. • Санузел под ключ: ванна с декоративным экраном, удобная раковина с пьедесталом, смесители, полотенцесушитель. На полу керамогранит. • Установлены все радиаторы, выключатели и счетчики. КОМФОРТ Благодаря тому, что фасад дома облицован плиткой с фактурой натурального камня, дом выглядит очень стильно и эстетично. Вы непременно оцените удобные входные группы на уровне земли - вам не придётся подниматься с коляской или с тяжелыми пакетами по ступенькам - всего пару шагов, и вы в подъезде возле лифта. Уютный двор с дизайнерским озеленением, рулонные газоны, клумбы с автополивом, современные детские и спортивные площадки с безопасным покрытием и много свободного пространства благодаря широкой посадке домов. ГИБКИЕ ВАРИАНТЫ ПРИОБРЕТЕНИЯ • ИПОТЕКА СЕМЕЙНАЯ • IT-ИПОТЕКА • РАССРОЧКА • НАЛИЧНЫЙ РАСЧЕТ (предоставляется скидка) • МАТЕРИНСКИЙ КАПИТАЛ • ВСЕ ВИДЫ СЕРТИФИКАТОВ Звоните сейчас и оставляйте заявку, пока действуют выгодные условия по ипотеке! А лучше приезжайте, посмотрите квартиру сами и вы точно в нее влюбитесь!

155 925 ₽/м²
Продаётся студия в строящемся доме (Литер 4), срок сдачи: II-кв. 2027, общей площадью 30.97 кв.м., на 8 этаже. РАСПОЛОЖЕНИЕ В 40 минутах от дома расположены такие природные достопримечательности, как предгорье Лаго-Наки, термальные источники, водопады Руфабго, канатная дорога в Даховской слободе, Хаджохская теснина, Азишская пещера и другие красоты. В 5 минутах от дома находится красивое озеро. Здесь приятно гулять, наслаждаясь красотой природы и чистым воздухом или заниматься спортом. В шаговой доступности действующая школа и детские сады, продуктовые и хозяйственные магазины, рынок, новая поликлиника. Достраивается школа в 5 минутах от дома на 1100 мест. Непосредственно на территории ЖК Предгорье Лаго-Наки скоро появятся коммерческие галереи с кафе, кулинарией, салонами красоты, пунктами выдачи интернет-заказов, отделениями банков и пр. Рядом с домом находится остановка общественного транспорта. ОТДЕЛКА В квартире вас ждет качественный ремонт под ключ: • Надежная металлическая входная дверь. • Дизайнерские межкомнатные двери цвета Дуб Сонома. • Матовые натяжные потолки. • Плотные виниловые обои пастельных тонов. • Панорамная дверь, стирающая грань между комнатой и балконом. • Витражное остекление балкона с бронзовой тонировкой, которая защищает от солнца и сохраняет вашу приватность. • Увеличенные на 20% окна, пропускающие больше света в квартиру. • Санузел под ключ: ванна с декоративным экраном, удобная раковина с пьедесталом, смесители, полотенцесушитель. На полу керамогранит. • Установлены все радиаторы, выключатели и счетчики. КОМФОРТ Благодаря тому, что фасад дома облицован плиткой с фактурой натурального камня, дом выглядит очень стильно и эстетично. Вы непременно оцените удобные входные группы на уровне земли - вам не придётся подниматься с коляской или с тяжелыми пакетами по ступенькам - всего пару шагов, и вы в подъезде возле лифта. Уютный двор с дизайнерским озеленением, рулонные газоны, клумбы с автополивом, современные детские и спортивные площадки с безопасным покрытием и много свободного пространства благодаря широкой посадке домов. ГИБКИЕ ВАРИАНТЫ ПРИОБРЕТЕНИЯ • ИПОТЕКА СЕМЕЙНАЯ • IT-ИПОТЕКА • РАССРОЧКА • НАЛИЧНЫЙ РАСЧЕТ (предоставляется скидка) • МАТЕРИНСКИЙ КАПИТАЛ • ВСЕ ВИДЫ СЕРТИФИКАТОВ Звоните сейчас и оставляйте заявку, пока действуют выгодные условия по ипотеке! А лучше приезжайте, посмотрите квартиру сами и вы точно в нее влюбитесь!






221 200 ₽/м²
Литер 7, 2 этаж, 7. "Долина" — это современный жилой комплекс на 24 га, сочетающий в себе комфорт и преимущества городской жизни в окружении природы. Здесь ваш день начинается с пения птиц и чистого горного воздуха, а не городского шума. Вся необходимая инфраструктура находится внутри территории, освобождая вас от лишних поездок и экономя время. Отсюда рукой подать до горных маршрутов и ярких впечатлений. Мы нашли идеальный баланс между энергией города и умиротворением природы. Место, где вы по-настоящему отдыхаете душой. Концепция "Город в городе" Все для жизни, учебы и отдыха на территории комплекса Собственный детский сад на 250 мест Своя школа на 1100 мест Физкультурно оздоровительный комплекс на территории Торговые галереи на первых этажах Площадки для детей всех возрастов Все для спорта и здоровья Современная архитектура Просторные холлы Квартиры с терассами Витражное остекление в каждой квартире Комфортные многоуровневые паркинги 16 домов 13-16 этажей 3098 машиномест 88 уникальных планировок Наслаждайтесь каждым днем в атмосфере гармонии и уюта!






233 800 ₽/м²
Литер 1, 14 этаж, 157. "Долина" — это современный жилой комплекс на 24 га, сочетающий в себе комфорт и преимущества городской жизни в окружении природы. Здесь ваш день начинается с пения птиц и чистого горного воздуха, а не городского шума. Вся необходимая инфраструктура находится внутри территории, освобождая вас от лишних поездок и экономя время. Отсюда рукой подать до горных маршрутов и ярких впечатлений. Мы нашли идеальный баланс между энергией города и умиротворением природы. Место, где вы по-настоящему отдыхаете душой. Концепция "Город в городе" Все для жизни, учебы и отдыха на территории комплекса Собственный детский сад на 250 мест Своя школа на 1100 мест Физкультурно оздоровительный комплекс на территории Торговые галереи на первых этажах Площадки для детей всех возрастов Все для спорта и здоровья Современная архитектура Просторные холлы Квартиры с терассами Витражное остекление в каждой квартире Комфортные многоуровневые паркинги 16 домов 13-16 этажей 3098 машиномест 88 уникальных планировок Наслаждайтесь каждым днем в атмосфере гармонии и уюта!






233 800 ₽/м²
Литер 2, 15 этаж, 123. "Долина" — это современный жилой комплекс на 24 га, сочетающий в себе комфорт и преимущества городской жизни в окружении природы. Здесь ваш день начинается с пения птиц и чистого горного воздуха, а не городского шума. Вся необходимая инфраструктура находится внутри территории, освобождая вас от лишних поездок и экономя время. Отсюда рукой подать до горных маршрутов и ярких впечатлений. Мы нашли идеальный баланс между энергией города и умиротворением природы. Место, где вы по-настоящему отдыхаете душой. Концепция "Город в городе" Все для жизни, учебы и отдыха на территории комплекса Собственный детский сад на 250 мест Своя школа на 1100 мест Физкультурно оздоровительный комплекс на территории Торговые галереи на первых этажах Площадки для детей всех возрастов Все для спорта и здоровья Современная архитектура Просторные холлы Квартиры с терассами Витражное остекление в каждой квартире Комфортные многоуровневые паркинги 16 домов 13-16 этажей 3098 машиномест 88 уникальных планировок Наслаждайтесь каждым днем в атмосфере гармонии и уюта!

149 000 ₽/м²
Продаётся студия в строящемся доме (Литер 3), срок сдачи: II-кв. 2027, общей площадью 31.6 кв.м., на 1 этаже. РАСПОЛОЖЕНИЕ В 40 минутах от дома расположены такие природные достопримечательности, как предгорье Лаго-Наки, термальные источники, водопады Руфабго, канатная дорога в Даховской слободе, Хаджохская теснина, Азишская пещера и другие красоты. В 5 минутах от дома находится красивое озеро. Здесь приятно гулять, наслаждаясь красотой природы и чистым воздухом или заниматься спортом. В шаговой доступности действующая школа и детские сады, продуктовые и хозяйственные магазины, рынок, новая поликлиника. Достраивается школа в 5 минутах от дома на 1100 мест. Непосредственно на территории ЖК Предгорье Лаго-Наки скоро появятся коммерческие галереи с кафе, кулинарией, салонами красоты, пунктами выдачи интернет-заказов, отделениями банков и пр. Рядом с домом находится остановка общественного транспорта. ОТДЕЛКА В квартире вас ждет качественный ремонт под ключ: • Надежная металлическая входная дверь. • Дизайнерские межкомнатные двери цвета Дуб Сонома. • Матовые натяжные потолки. • Плотные виниловые обои пастельных тонов. • Панорамная дверь, стирающая грань между комнатой и балконом. • Витражное остекление балкона с бронзовой тонировкой, которая защищает от солнца и сохраняет вашу приватность. • Увеличенные на 20% окна, пропускающие больше света в квартиру. • Санузел под ключ: ванна с декоративным экраном, удобная раковина с пьедесталом, смесители, полотенцесушитель. На полу керамогранит. • Установлены все радиаторы, выключатели и счетчики. КОМФОРТ Благодаря тому, что фасад дома облицован плиткой с фактурой натурального камня, дом выглядит очень стильно и эстетично. Вы непременно оцените удобные входные группы на уровне земли - вам не придётся подниматься с коляской или с тяжелыми пакетами по ступенькам - всего пару шагов, и вы в подъезде возле лифта. Уютный двор с дизайнерским озеленением, рулонные газоны, клумбы с автополивом, современные детские и спортивные площадки с безопасным покрытием и много свободного пространства благодаря широкой посадке домов. ГИБКИЕ ВАРИАНТЫ ПРИОБРЕТЕНИЯ • ИПОТЕКА СЕМЕЙНАЯ • IT-ИПОТЕКА • РАССРОЧКА • НАЛИЧНЫЙ РАСЧЕТ (предоставляется скидка) • МАТЕРИНСКИЙ КАПИТАЛ • ВСЕ ВИДЫ СЕРТИФИКАТОВ Звоните сейчас и оставляйте заявку, пока действуют выгодные условия по ипотеке! А лучше приезжайте, посмотрите квартиру сами и вы точно в нее влюбитесь!






233 800 ₽/м²
Литер 2, 13 этаж, 106. "Долина" — это современный жилой комплекс на 24 га, сочетающий в себе комфорт и преимущества городской жизни в окружении природы. Здесь ваш день начинается с пения птиц и чистого горного воздуха, а не городского шума. Вся необходимая инфраструктура находится внутри территории, освобождая вас от лишних поездок и экономя время. Отсюда рукой подать до горных маршрутов и ярких впечатлений. Мы нашли идеальный баланс между энергией города и умиротворением природы. Место, где вы по-настоящему отдыхаете душой. Концепция "Город в городе" Все для жизни, учебы и отдыха на территории комплекса Собственный детский сад на 250 мест Своя школа на 1100 мест Физкультурно оздоровительный комплекс на территории Торговые галереи на первых этажах Площадки для детей всех возрастов Все для спорта и здоровья Современная архитектура Просторные холлы Квартиры с терассами Витражное остекление в каждой квартире Комфортные многоуровневые паркинги 16 домов 13-16 этажей 3098 машиномест 88 уникальных планировок Наслаждайтесь каждым днем в атмосфере гармонии и уюта!






229 600 ₽/м²
Литер 7, 14 этаж, 157. "Долина" — это современный жилой комплекс на 24 га, сочетающий в себе комфорт и преимущества городской жизни в окружении природы. Здесь ваш день начинается с пения птиц и чистого горного воздуха, а не городского шума. Вся необходимая инфраструктура находится внутри территории, освобождая вас от лишних поездок и экономя время. Отсюда рукой подать до горных маршрутов и ярких впечатлений. Мы нашли идеальный баланс между энергией города и умиротворением природы. Место, где вы по-настоящему отдыхаете душой. Концепция "Город в городе" Все для жизни, учебы и отдыха на территории комплекса Собственный детский сад на 250 мест Своя школа на 1100 мест Физкультурно оздоровительный комплекс на территории Торговые галереи на первых этажах Площадки для детей всех возрастов Все для спорта и здоровья Современная архитектура Просторные холлы Квартиры с терассами Витражное остекление в каждой квартире Комфортные многоуровневые паркинги 16 домов 13-16 этажей 3098 машиномест 88 уникальных планировок Наслаждайтесь каждым днем в атмосфере гармонии и уюта!

170 700 ₽/м²
Продаётся студия в строящемся доме (Литер 8), срок сдачи: IV-кв. 2026, общей площадью 26.53 кв.м., на 9 этаже. РАСПОЛОЖЕНИЕ В 40 минутах от дома расположены такие природные достопримечательности, как предгорье Лаго-Наки, термальные источники, водопады Руфабго, канатная дорога в Даховской слободе, Хаджохская теснина, Азишская пещера и другие красоты. В 5 минутах от дома находится красивое озеро. Здесь приятно гулять, наслаждаясь красотой природы и чистым воздухом или заниматься спортом. В шаговой доступности действующая школа и детские сады, продуктовые и хозяйственные магазины, рынок, новая поликлиника. Достраивается школа в 5 минутах от дома на 1100 мест. Непосредственно на территории ЖК Предгорье Лаго-Наки скоро появятся коммерческие галереи с кафе, кулинарией, салонами красоты, пунктами выдачи интернет-заказов, отделениями банков и пр. Рядом с домом находится остановка общественного транспорта. ОТДЕЛКА В квартире вас ждет качественный ремонт под ключ: • Надежная металлическая входная дверь. • Дизайнерские межкомнатные двери цвета Дуб Сонома. • Матовые натяжные потолки. • Плотные виниловые обои пастельных тонов. • Панорамная дверь, стирающая грань между комнатой и балконом. • Витражное остекление балкона с бронзовой тонировкой, которая защищает от солнца и сохраняет вашу приватность. • Увеличенные на 20% окна, пропускающие больше света в квартиру. • Санузел под ключ: ванна с декоративным экраном, удобная раковина с пьедесталом, смесители, полотенцесушитель. На полу керамогранит. • Установлены все радиаторы, выключатели и счетчики. КОМФОРТ Благодаря тому, что фасад дома облицован плиткой с фактурой натурального камня, дом выглядит очень стильно и эстетично. Вы непременно оцените удобные входные группы на уровне земли - вам не придётся подниматься с коляской или с тяжелыми пакетами по ступенькам - всего пару шагов, и вы в подъезде возле лифта. Уютный двор с дизайнерским озеленением, рулонные газоны, клумбы с автополивом, современные детские и спортивные площадки с безопасным покрытием и много свободного пространства благодаря широкой посадке домов. ГИБКИЕ ВАРИАНТЫ ПРИОБРЕТЕНИЯ • ИПОТЕКА СЕМЕЙНАЯ • IT-ИПОТЕКА • РАССРОЧКА • НАЛИЧНЫЙ РАСЧЕТ (предоставляется скидка) • МАТЕРИНСКИЙ КАПИТАЛ • ВСЕ ВИДЫ СЕРТИФИКАТОВ Звоните сейчас и оставляйте заявку, пока действуют выгодные условия по ипотеке! А лучше приезжайте, посмотрите квартиру сами и вы точно в нее влюбитесь!






221 200 ₽/м²
Литер 6, 5 этаж, 34. "Долина" — это современный жилой комплекс на 24 га, сочетающий в себе комфорт и преимущества городской жизни в окружении природы. Здесь ваш день начинается с пения птиц и чистого горного воздуха, а не городского шума. Вся необходимая инфраструктура находится внутри территории, освобождая вас от лишних поездок и экономя время. Отсюда рукой подать до горных маршрутов и ярких впечатлений. Мы нашли идеальный баланс между энергией города и умиротворением природы. Место, где вы по-настоящему отдыхаете душой. Концепция "Город в городе" Все для жизни, учебы и отдыха на территории комплекса Собственный детский сад на 250 мест Своя школа на 1100 мест Физкультурно оздоровительный комплекс на территории Торговые галереи на первых этажах Площадки для детей всех возрастов Все для спорта и здоровья Современная архитектура Просторные холлы Квартиры с терассами Витражное остекление в каждой квартире Комфортные многоуровневые паркинги 16 домов 13-16 этажей 3098 машиномест 88 уникальных планировок Наслаждайтесь каждым днем в атмосфере гармонии и уюта!



221 200 ₽/м²
Литер 5, 5 этаж, 33. "Долина" — это современный жилой комплекс на 24 га, сочетающий в себе комфорт и преимущества городской жизни в окружении природы. Здесь ваш день начинается с пения птиц и чистого горного воздуха, а не городского шума. Вся необходимая инфраструктура находится внутри территории, освобождая вас от лишних поездок и экономя время. Отсюда рукой подать до горных маршрутов и ярких впечатлений. Мы нашли идеальный баланс между энергией города и умиротворением природы. Место, где вы по-настоящему отдыхаете душой. Концепция "Город в городе" Все для жизни, учебы и отдыха на территории комплекса Собственный детский сад на 250 мест Своя школа на 1100 мест Физкультурно оздоровительный комплекс на территории Торговые галереи на первых этажах Площадки для детей всех возрастов Все для спорта и здоровья Современная архитектура Просторные холлы Квартиры с терассами Витражное остекление в каждой квартире Комфортные многоуровневые паркинги 16 домов 13-16 этажей 3098 машиномест 88 уникальных планировок Наслаждайтесь каждым днем в атмосфере гармонии и уюта!






89 212 ₽/м²
НЕ ФЕЙК, НЕ АГЕНТ!!! Продам 2х комнатную квартиру в центре яблоновки. Собственник. Без залога и ограничений. Большие изолированные комнаты, окна квартиры выходят на обе стороны дома. Около дома есть все удобства: магнит, пятерочка, продуктовые магазины, хозяйственные магазины, аптеки. Напротив дома остановка общественного транспорта. Рядом с домом детский садик. Во дворе новая детская площадка, тренажеры. В квартире установлены 2 кондиционера и водонагреватель. Возможен торг.
| 🔷 Средняя цена продажи: | 5,7 млн ₽ |
| 🔷 Средняя цена за м2: | 229,6 тыс. ₽/м² |
| 🔷 Минимальная стоимость: | 4,2 млн ₽ |
| 🔷 Самый дорогой объект: | 5,9 млн ₽ |