











150 980 ₽/м²
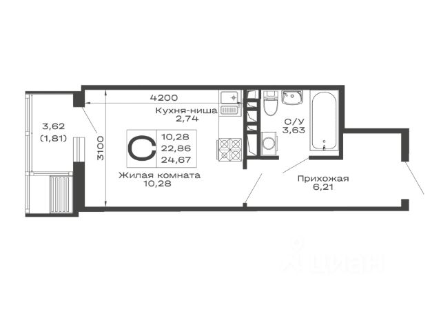
Продается студия в новом ЖК "Лаго-Наки". Из окна вид открывается прямо на гору и озеро. Внутридворовая территория облагорожена, имеется современная детская площадка, стоянка для а/машин. Современный, светлый и просторный подъезд, с возможностью размещения детских колясок и велосипедов. Состояние квартиры хорошее. В квартире выполнен ремонт "от Застройщика", в ванной установлена сан.техника, в кухне-гостинной имеется плита и установлена раковина.Установлены счетчики холодной/горячей воды, регулируемая батарея, домофон.Балкон застеклен витражными окнами. Квартира может подойти как для проживания молодой семьи, так и для сдачи в аренду, либо с целью инвестирования. На площадке и в доме уже есть соседи! Пишите, звоните, с удовольствием ответим на все вопросы. Код пользователя: 170647 Номер в базе: 6759286







149 200 ₽/м²
Продаётся студия в строящемся доме (Литер 8), срок сдачи: IV-кв. 2026, общей площадью 31.54 кв.м., на 1 этаже. РАСПОЛОЖЕНИЕ В 40 минутах от дома расположены такие природные достопримечательности, как предгорье Лаго-Наки, термальные источники, водопады Руфабго, канатная дорога в Даховской слободе, Хаджохская теснина, Азишская пещера и другие красоты. В 5 минутах от дома находится красивое озеро. Здесь приятно гулять, наслаждаясь красотой природы и чистым воздухом или заниматься спортом. В шаговой доступности действующая школа и детские сады, продуктовые и хозяйственные магазины, рынок, новая поликлиника. Достраивается школа в 5 минутах от дома на 1100 мест. Непосредственно на территории ЖК Предгорье Лаго-Наки скоро появятся коммерческие галереи с кафе, кулинарией, салонами красоты, пунктами выдачи интернет-заказов, отделениями банков и пр. Рядом с домом находится остановка общественного транспорта. ОТДЕЛКА В квартире вас ждет качественный ремонт под ключ: • Надежная металлическая входная дверь. • Дизайнерские межкомнатные двери цвета Дуб Сонома. • Матовые натяжные потолки. • Плотные виниловые обои пастельных тонов. • Панорамная дверь, стирающая грань между комнатой и балконом. • Витражное остекление балкона с бронзовой тонировкой, которая защищает от солнца и сохраняет вашу приватность. • Увеличенные на 20% окна, пропускающие больше света в квартиру. • Санузел под ключ: ванна с декоративным экраном, удобная раковина с пьедесталом, смесители, полотенцесушитель. На полу керамогранит. • Установлены все радиаторы, выключатели и счетчики. КОМФОРТ Благодаря тому, что фасад дома облицован плиткой с фактурой натурального камня, дом выглядит очень стильно и эстетично. Вы непременно оцените удобные входные группы на уровне земли - вам не придётся подниматься с коляской или с тяжелыми пакетами по ступенькам - всего пару шагов, и вы в подъезде возле лифта. Уютный двор с дизайнерским озеленением, рулонные газоны, клумбы с автополивом, современные детские и спортивные площадки с безопасным покрытием и много свободного пространства благодаря широкой посадке домов. ГИБКИЕ ВАРИАНТЫ ПРИОБРЕТЕНИЯ • ИПОТЕКА СЕМЕЙНАЯ • IT-ИПОТЕКА • РАССРОЧКА • НАЛИЧНЫЙ РАСЧЕТ (предоставляется скидка) • МАТЕРИНСКИЙ КАПИТАЛ • ВСЕ ВИДЫ СЕРТИФИКАТОВ Звоните сейчас и оставляйте заявку, пока действуют выгодные условия по ипотеке! А лучше приезжайте, посмотрите квартиру сами и вы точно в нее влюбитесь!



225 400 ₽/м²
Литер 2, 8 этаж, 61. "Долина" — это современный жилой комплекс на 24 га, сочетающий в себе комфорт и преимущества городской жизни в окружении природы. Здесь ваш день начинается с пения птиц и чистого горного воздуха, а не городского шума. Вся необходимая инфраструктура находится внутри территории, освобождая вас от лишних поездок и экономя время. Отсюда рукой подать до горных маршрутов и ярких впечатлений. Мы нашли идеальный баланс между энергией города и умиротворением природы. Место, где вы по-настоящему отдыхаете душой. Концепция "Город в городе" Все для жизни, учебы и отдыха на территории комплекса Собственный детский сад на 250 мест Своя школа на 1100 мест Физкультурно оздоровительный комплекс на территории Торговые галереи на первых этажах Площадки для детей всех возрастов Все для спорта и здоровья Современная архитектура Просторные холлы Квартиры с терассами Витражное остекление в каждой квартире Комфортные многоуровневые паркинги 16 домов 13-16 этажей 3098 машиномест 88 уникальных планировок Наслаждайтесь каждым днем в атмосфере гармонии и уюта!









233 800 ₽/м²
Литер 1, 14 этаж, 157. "Долина" — это современный жилой комплекс на 24 га, сочетающий в себе комфорт и преимущества городской жизни в окружении природы. Здесь ваш день начинается с пения птиц и чистого горного воздуха, а не городского шума. Вся необходимая инфраструктура находится внутри территории, освобождая вас от лишних поездок и экономя время. Отсюда рукой подать до горных маршрутов и ярких впечатлений. Мы нашли идеальный баланс между энергией города и умиротворением природы. Место, где вы по-настоящему отдыхаете душой. Концепция "Город в городе" Все для жизни, учебы и отдыха на территории комплекса Собственный детский сад на 250 мест Своя школа на 1100 мест Физкультурно оздоровительный комплекс на территории Торговые галереи на первых этажах Площадки для детей всех возрастов Все для спорта и здоровья Современная архитектура Просторные холлы Квартиры с терассами Витражное остекление в каждой квартире Комфортные многоуровневые паркинги 16 домов 13-16 этажей 3098 машиномест 88 уникальных планировок Наслаждайтесь каждым днем в атмосфере гармонии и уюта!



170 700 ₽/м²
Продаётся студия в строящемся доме (Литер 8), срок сдачи: IV-кв. 2026, общей площадью 26.53 кв.м., на 9 этаже. РАСПОЛОЖЕНИЕ В 40 минутах от дома расположены такие природные достопримечательности, как предгорье Лаго-Наки, термальные источники, водопады Руфабго, канатная дорога в Даховской слободе, Хаджохская теснина, Азишская пещера и другие красоты. В 5 минутах от дома находится красивое озеро. Здесь приятно гулять, наслаждаясь красотой природы и чистым воздухом или заниматься спортом. В шаговой доступности действующая школа и детские сады, продуктовые и хозяйственные магазины, рынок, новая поликлиника. Достраивается школа в 5 минутах от дома на 1100 мест. Непосредственно на территории ЖК Предгорье Лаго-Наки скоро появятся коммерческие галереи с кафе, кулинарией, салонами красоты, пунктами выдачи интернет-заказов, отделениями банков и пр. Рядом с домом находится остановка общественного транспорта. ОТДЕЛКА В квартире вас ждет качественный ремонт под ключ: • Надежная металлическая входная дверь. • Дизайнерские межкомнатные двери цвета Дуб Сонома. • Матовые натяжные потолки. • Плотные виниловые обои пастельных тонов. • Панорамная дверь, стирающая грань между комнатой и балконом. • Витражное остекление балкона с бронзовой тонировкой, которая защищает от солнца и сохраняет вашу приватность. • Увеличенные на 20% окна, пропускающие больше света в квартиру. • Санузел под ключ: ванна с декоративным экраном, удобная раковина с пьедесталом, смесители, полотенцесушитель. На полу керамогранит. • Установлены все радиаторы, выключатели и счетчики. КОМФОРТ Благодаря тому, что фасад дома облицован плиткой с фактурой натурального камня, дом выглядит очень стильно и эстетично. Вы непременно оцените удобные входные группы на уровне земли - вам не придётся подниматься с коляской или с тяжелыми пакетами по ступенькам - всего пару шагов, и вы в подъезде возле лифта. Уютный двор с дизайнерским озеленением, рулонные газоны, клумбы с автополивом, современные детские и спортивные площадки с безопасным покрытием и много свободного пространства благодаря широкой посадке домов. ГИБКИЕ ВАРИАНТЫ ПРИОБРЕТЕНИЯ • ИПОТЕКА СЕМЕЙНАЯ • IT-ИПОТЕКА • РАССРОЧКА • НАЛИЧНЫЙ РАСЧЕТ (предоставляется скидка) • МАТЕРИНСКИЙ КАПИТАЛ • ВСЕ ВИДЫ СЕРТИФИКАТОВ Звоните сейчас и оставляйте заявку, пока действуют выгодные условия по ипотеке! А лучше приезжайте, посмотрите квартиру сами и вы точно в нее влюбитесь!



233 800 ₽/м²
Литер 2, 15 этаж, 123. "Долина" — это современный жилой комплекс на 24 га, сочетающий в себе комфорт и преимущества городской жизни в окружении природы. Здесь ваш день начинается с пения птиц и чистого горного воздуха, а не городского шума. Вся необходимая инфраструктура находится внутри территории, освобождая вас от лишних поездок и экономя время. Отсюда рукой подать до горных маршрутов и ярких впечатлений. Мы нашли идеальный баланс между энергией города и умиротворением природы. Место, где вы по-настоящему отдыхаете душой. Концепция "Город в городе" Все для жизни, учебы и отдыха на территории комплекса Собственный детский сад на 250 мест Своя школа на 1100 мест Физкультурно оздоровительный комплекс на территории Торговые галереи на первых этажах Площадки для детей всех возрастов Все для спорта и здоровья Современная архитектура Просторные холлы Квартиры с терассами Витражное остекление в каждой квартире Комфортные многоуровневые паркинги 16 домов 13-16 этажей 3098 машиномест 88 уникальных планировок Наслаждайтесь каждым днем в атмосфере гармонии и уюта!

155 925 ₽/м²
Продаётся студия в строящемся доме (Литер 4), срок сдачи: II-кв. 2027, общей площадью 30.97 кв.м., на 8 этаже. РАСПОЛОЖЕНИЕ В 40 минутах от дома расположены такие природные достопримечательности, как предгорье Лаго-Наки, термальные источники, водопады Руфабго, канатная дорога в Даховской слободе, Хаджохская теснина, Азишская пещера и другие красоты. В 5 минутах от дома находится красивое озеро. Здесь приятно гулять, наслаждаясь красотой природы и чистым воздухом или заниматься спортом. В шаговой доступности действующая школа и детские сады, продуктовые и хозяйственные магазины, рынок, новая поликлиника. Достраивается школа в 5 минутах от дома на 1100 мест. Непосредственно на территории ЖК Предгорье Лаго-Наки скоро появятся коммерческие галереи с кафе, кулинарией, салонами красоты, пунктами выдачи интернет-заказов, отделениями банков и пр. Рядом с домом находится остановка общественного транспорта. ОТДЕЛКА В квартире вас ждет качественный ремонт под ключ: • Надежная металлическая входная дверь. • Дизайнерские межкомнатные двери цвета Дуб Сонома. • Матовые натяжные потолки. • Плотные виниловые обои пастельных тонов. • Панорамная дверь, стирающая грань между комнатой и балконом. • Витражное остекление балкона с бронзовой тонировкой, которая защищает от солнца и сохраняет вашу приватность. • Увеличенные на 20% окна, пропускающие больше света в квартиру. • Санузел под ключ: ванна с декоративным экраном, удобная раковина с пьедесталом, смесители, полотенцесушитель. На полу керамогранит. • Установлены все радиаторы, выключатели и счетчики. КОМФОРТ Благодаря тому, что фасад дома облицован плиткой с фактурой натурального камня, дом выглядит очень стильно и эстетично. Вы непременно оцените удобные входные группы на уровне земли - вам не придётся подниматься с коляской или с тяжелыми пакетами по ступенькам - всего пару шагов, и вы в подъезде возле лифта. Уютный двор с дизайнерским озеленением, рулонные газоны, клумбы с автополивом, современные детские и спортивные площадки с безопасным покрытием и много свободного пространства благодаря широкой посадке домов. ГИБКИЕ ВАРИАНТЫ ПРИОБРЕТЕНИЯ • ИПОТЕКА СЕМЕЙНАЯ • IT-ИПОТЕКА • РАССРОЧКА • НАЛИЧНЫЙ РАСЧЕТ (предоставляется скидка) • МАТЕРИНСКИЙ КАПИТАЛ • ВСЕ ВИДЫ СЕРТИФИКАТОВ Звоните сейчас и оставляйте заявку, пока действуют выгодные условия по ипотеке! А лучше приезжайте, посмотрите квартиру сами и вы точно в нее влюбитесь!



154 924 ₽/м²
Продаётся студия в строящемся доме (Литер 4), срок сдачи: II-кв. 2027, общей площадью 30.97 кв.м., на 9 этаже. РАСПОЛОЖЕНИЕ В 40 минутах от дома расположены такие природные достопримечательности, как предгорье Лаго-Наки, термальные источники, водопады Руфабго, канатная дорога в Даховской слободе, Хаджохская теснина, Азишская пещера и другие красоты. В 5 минутах от дома находится красивое озеро. Здесь приятно гулять, наслаждаясь красотой природы и чистым воздухом или заниматься спортом. В шаговой доступности действующая школа и детские сады, продуктовые и хозяйственные магазины, рынок, новая поликлиника. Достраивается школа в 5 минутах от дома на 1100 мест. Непосредственно на территории ЖК Предгорье Лаго-Наки скоро появятся коммерческие галереи с кафе, кулинарией, салонами красоты, пунктами выдачи интернет-заказов, отделениями банков и пр. Рядом с домом находится остановка общественного транспорта. ОТДЕЛКА В квартире вас ждет качественный ремонт под ключ: • Надежная металлическая входная дверь. • Дизайнерские межкомнатные двери цвета Дуб Сонома. • Матовые натяжные потолки. • Плотные виниловые обои пастельных тонов. • Панорамная дверь, стирающая грань между комнатой и балконом. • Витражное остекление балкона с бронзовой тонировкой, которая защищает от солнца и сохраняет вашу приватность. • Увеличенные на 20% окна, пропускающие больше света в квартиру. • Санузел под ключ: ванна с декоративным экраном, удобная раковина с пьедесталом, смесители, полотенцесушитель. На полу керамогранит. • Установлены все радиаторы, выключатели и счетчики. КОМФОРТ Благодаря тому, что фасад дома облицован плиткой с фактурой натурального камня, дом выглядит очень стильно и эстетично. Вы непременно оцените удобные входные группы на уровне земли - вам не придётся подниматься с коляской или с тяжелыми пакетами по ступенькам - всего пару шагов, и вы в подъезде возле лифта. Уютный двор с дизайнерским озеленением, рулонные газоны, клумбы с автополивом, современные детские и спортивные площадки с безопасным покрытием и много свободного пространства благодаря широкой посадке домов. ГИБКИЕ ВАРИАНТЫ ПРИОБРЕТЕНИЯ • ИПОТЕКА СЕМЕЙНАЯ • IT-ИПОТЕКА • РАССРОЧКА • НАЛИЧНЫЙ РАСЧЕТ (предоставляется скидка) • МАТЕРИНСКИЙ КАПИТАЛ • ВСЕ ВИДЫ СЕРТИФИКАТОВ Звоните сейчас и оставляйте заявку, пока действуют выгодные условия по ипотеке! А лучше приезжайте, посмотрите квартиру сами и вы точно в нее влюбитесь!

151 700 ₽/м²
Продаётся студия в строящемся доме (Литер 3), срок сдачи: II-кв. 2027, общей площадью 30.97 кв.м., на 6 этаже. РАСПОЛОЖЕНИЕ В 40 минутах от дома расположены такие природные достопримечательности, как предгорье Лаго-Наки, термальные источники, водопады Руфабго, канатная дорога в Даховской слободе, Хаджохская теснина, Азишская пещера и другие красоты. В 5 минутах от дома находится красивое озеро. Здесь приятно гулять, наслаждаясь красотой природы и чистым воздухом или заниматься спортом. В шаговой доступности действующая школа и детские сады, продуктовые и хозяйственные магазины, рынок, новая поликлиника. Достраивается школа в 5 минутах от дома на 1100 мест. Непосредственно на территории ЖК Предгорье Лаго-Наки скоро появятся коммерческие галереи с кафе, кулинарией, салонами красоты, пунктами выдачи интернет-заказов, отделениями банков и пр. Рядом с домом находится остановка общественного транспорта. ОТДЕЛКА В квартире вас ждет качественный ремонт под ключ: • Надежная металлическая входная дверь. • Дизайнерские межкомнатные двери цвета Дуб Сонома. • Матовые натяжные потолки. • Плотные виниловые обои пастельных тонов. • Панорамная дверь, стирающая грань между комнатой и балконом. • Витражное остекление балкона с бронзовой тонировкой, которая защищает от солнца и сохраняет вашу приватность. • Увеличенные на 20% окна, пропускающие больше света в квартиру. • Санузел под ключ: ванна с декоративным экраном, удобная раковина с пьедесталом, смесители, полотенцесушитель. На полу керамогранит. • Установлены все радиаторы, выключатели и счетчики. КОМФОРТ Благодаря тому, что фасад дома облицован плиткой с фактурой натурального камня, дом выглядит очень стильно и эстетично. Вы непременно оцените удобные входные группы на уровне земли - вам не придётся подниматься с коляской или с тяжелыми пакетами по ступенькам - всего пару шагов, и вы в подъезде возле лифта. Уютный двор с дизайнерским озеленением, рулонные газоны, клумбы с автополивом, современные детские и спортивные площадки с безопасным покрытием и много свободного пространства благодаря широкой посадке домов. ГИБКИЕ ВАРИАНТЫ ПРИОБРЕТЕНИЯ • ИПОТЕКА СЕМЕЙНАЯ • IT-ИПОТЕКА • РАССРОЧКА • НАЛИЧНЫЙ РАСЧЕТ (предоставляется скидка) • МАТЕРИНСКИЙ КАПИТАЛ • ВСЕ ВИДЫ СЕРТИФИКАТОВ Звоните сейчас и оставляйте заявку, пока действуют выгодные условия по ипотеке! А лучше приезжайте, посмотрите квартиру сами и вы точно в нее влюбитесь!




153 300 ₽/м²
Продаётся студия в строящемся доме (Литер 3), срок сдачи: II-кв. 2027, общей площадью 32.76 кв.м., на 1 этаже. РАСПОЛОЖЕНИЕ В 40 минутах от дома расположены такие природные достопримечательности, как предгорье Лаго-Наки, термальные источники, водопады Руфабго, канатная дорога в Даховской слободе, Хаджохская теснина, Азишская пещера и другие красоты. В 5 минутах от дома находится красивое озеро. Здесь приятно гулять, наслаждаясь красотой природы и чистым воздухом или заниматься спортом. В шаговой доступности действующая школа и детские сады, продуктовые и хозяйственные магазины, рынок, новая поликлиника. Достраивается школа в 5 минутах от дома на 1100 мест. Непосредственно на территории ЖК Предгорье Лаго-Наки скоро появятся коммерческие галереи с кафе, кулинарией, салонами красоты, пунктами выдачи интернет-заказов, отделениями банков и пр. Рядом с домом находится остановка общественного транспорта. ОТДЕЛКА В квартире вас ждет качественный ремонт под ключ: • Надежная металлическая входная дверь. • Дизайнерские межкомнатные двери цвета Дуб Сонома. • Матовые натяжные потолки. • Плотные виниловые обои пастельных тонов. • Панорамная дверь, стирающая грань между комнатой и балконом. • Витражное остекление балкона с бронзовой тонировкой, которая защищает от солнца и сохраняет вашу приватность. • Увеличенные на 20% окна, пропускающие больше света в квартиру. • Санузел под ключ: ванна с декоративным экраном, удобная раковина с пьедесталом, смесители, полотенцесушитель. На полу керамогранит. • Установлены все радиаторы, выключатели и счетчики. КОМФОРТ Благодаря тому, что фасад дома облицован плиткой с фактурой натурального камня, дом выглядит очень стильно и эстетично. Вы непременно оцените удобные входные группы на уровне земли - вам не придётся подниматься с коляской или с тяжелыми пакетами по ступенькам - всего пару шагов, и вы в подъезде возле лифта. Уютный двор с дизайнерским озеленением, рулонные газоны, клумбы с автополивом, современные детские и спортивные площадки с безопасным покрытием и много свободного пространства благодаря широкой посадке домов. ГИБКИЕ ВАРИАНТЫ ПРИОБРЕТЕНИЯ • ИПОТЕКА СЕМЕЙНАЯ • IT-ИПОТЕКА • РАССРОЧКА • НАЛИЧНЫЙ РАСЧЕТ (предоставляется скидка) • МАТЕРИНСКИЙ КАПИТАЛ • ВСЕ ВИДЫ СЕРТИФИКАТОВ Звоните сейчас и оставляйте заявку, пока действуют выгодные условия по ипотеке! А лучше приезжайте, посмотрите квартиру сами и вы точно в нее влюбитесь!



152 200 ₽/м²
Продаётся студия в строящемся доме (Литер 8), срок сдачи: IV-кв. 2026, общей площадью 30.91 кв.м., на 5 этаже. РАСПОЛОЖЕНИЕ В 40 минутах от дома расположены такие природные достопримечательности, как предгорье Лаго-Наки, термальные источники, водопады Руфабго, канатная дорога в Даховской слободе, Хаджохская теснина, Азишская пещера и другие красоты. В 5 минутах от дома находится красивое озеро. Здесь приятно гулять, наслаждаясь красотой природы и чистым воздухом или заниматься спортом. В шаговой доступности действующая школа и детские сады, продуктовые и хозяйственные магазины, рынок, новая поликлиника. Достраивается школа в 5 минутах от дома на 1100 мест. Непосредственно на территории ЖК Предгорье Лаго-Наки скоро появятся коммерческие галереи с кафе, кулинарией, салонами красоты, пунктами выдачи интернет-заказов, отделениями банков и пр. Рядом с домом находится остановка общественного транспорта. ОТДЕЛКА В квартире вас ждет качественный ремонт под ключ: • Надежная металлическая входная дверь. • Дизайнерские межкомнатные двери цвета Дуб Сонома. • Матовые натяжные потолки. • Плотные виниловые обои пастельных тонов. • Панорамная дверь, стирающая грань между комнатой и балконом. • Витражное остекление балкона с бронзовой тонировкой, которая защищает от солнца и сохраняет вашу приватность. • Увеличенные на 20% окна, пропускающие больше света в квартиру. • Санузел под ключ: ванна с декоративным экраном, удобная раковина с пьедесталом, смесители, полотенцесушитель. На полу керамогранит. • Установлены все радиаторы, выключатели и счетчики. КОМФОРТ Благодаря тому, что фасад дома облицован плиткой с фактурой натурального камня, дом выглядит очень стильно и эстетично. Вы непременно оцените удобные входные группы на уровне земли - вам не придётся подниматься с коляской или с тяжелыми пакетами по ступенькам - всего пару шагов, и вы в подъезде возле лифта. Уютный двор с дизайнерским озеленением, рулонные газоны, клумбы с автополивом, современные детские и спортивные площадки с безопасным покрытием и много свободного пространства благодаря широкой посадке домов. ГИБКИЕ ВАРИАНТЫ ПРИОБРЕТЕНИЯ • ИПОТЕКА СЕМЕЙНАЯ • IT-ИПОТЕКА • РАССРОЧКА • НАЛИЧНЫЙ РАСЧЕТ (предоставляется скидка) • МАТЕРИНСКИЙ КАПИТАЛ • ВСЕ ВИДЫ СЕРТИФИКАТОВ Звоните сейчас и оставляйте заявку, пока действуют выгодные условия по ипотеке! А лучше приезжайте, посмотрите квартиру сами и вы точно в нее влюбитесь!

162 100 ₽/м²
Продаётся студия в строящемся доме (Литер 3), срок сдачи: II-кв. 2027, общей площадью 26.53 кв.м., на 8 этаже. РАСПОЛОЖЕНИЕ В 40 минутах от дома расположены такие природные достопримечательности, как предгорье Лаго-Наки, термальные источники, водопады Руфабго, канатная дорога в Даховской слободе, Хаджохская теснина, Азишская пещера и другие красоты. В 5 минутах от дома находится красивое озеро. Здесь приятно гулять, наслаждаясь красотой природы и чистым воздухом или заниматься спортом. В шаговой доступности действующая школа и детские сады, продуктовые и хозяйственные магазины, рынок, новая поликлиника. Достраивается школа в 5 минутах от дома на 1100 мест. Непосредственно на территории ЖК Предгорье Лаго-Наки скоро появятся коммерческие галереи с кафе, кулинарией, салонами красоты, пунктами выдачи интернет-заказов, отделениями банков и пр. Рядом с домом находится остановка общественного транспорта. ОТДЕЛКА В квартире вас ждет качественный ремонт под ключ: • Надежная металлическая входная дверь. • Дизайнерские межкомнатные двери цвета Дуб Сонома. • Матовые натяжные потолки. • Плотные виниловые обои пастельных тонов. • Панорамная дверь, стирающая грань между комнатой и балконом. • Витражное остекление балкона с бронзовой тонировкой, которая защищает от солнца и сохраняет вашу приватность. • Увеличенные на 20% окна, пропускающие больше света в квартиру. • Санузел под ключ: ванна с декоративным экраном, удобная раковина с пьедесталом, смесители, полотенцесушитель. На полу керамогранит. • Установлены все радиаторы, выключатели и счетчики. КОМФОРТ Благодаря тому, что фасад дома облицован плиткой с фактурой натурального камня, дом выглядит очень стильно и эстетично. Вы непременно оцените удобные входные группы на уровне земли - вам не придётся подниматься с коляской или с тяжелыми пакетами по ступенькам - всего пару шагов, и вы в подъезде возле лифта. Уютный двор с дизайнерским озеленением, рулонные газоны, клумбы с автополивом, современные детские и спортивные площадки с безопасным покрытием и много свободного пространства благодаря широкой посадке домов. ГИБКИЕ ВАРИАНТЫ ПРИОБРЕТЕНИЯ • ИПОТЕКА СЕМЕЙНАЯ • IT-ИПОТЕКА • РАССРОЧКА • НАЛИЧНЫЙ РАСЧЕТ (предоставляется скидка) • МАТЕРИНСКИЙ КАПИТАЛ • ВСЕ ВИДЫ СЕРТИФИКАТОВ Звоните сейчас и оставляйте заявку, пока действуют выгодные условия по ипотеке! А лучше приезжайте, посмотрите квартиру сами и вы точно в нее влюбитесь!






149 200 ₽/м²
Продаётся студия в строящемся доме (Литер 8), срок сдачи: IV-кв. 2026, общей площадью 31.6 кв.м., на 1 этаже. РАСПОЛОЖЕНИЕ В 40 минутах от дома расположены такие природные достопримечательности, как предгорье Лаго-Наки, термальные источники, водопады Руфабго, канатная дорога в Даховской слободе, Хаджохская теснина, Азишская пещера и другие красоты. В 5 минутах от дома находится красивое озеро. Здесь приятно гулять, наслаждаясь красотой природы и чистым воздухом или заниматься спортом. В шаговой доступности действующая школа и детские сады, продуктовые и хозяйственные магазины, рынок, новая поликлиника. Достраивается школа в 5 минутах от дома на 1100 мест. Непосредственно на территории ЖК Предгорье Лаго-Наки скоро появятся коммерческие галереи с кафе, кулинарией, салонами красоты, пунктами выдачи интернет-заказов, отделениями банков и пр. Рядом с домом находится остановка общественного транспорта. ОТДЕЛКА В квартире вас ждет качественный ремонт под ключ: • Надежная металлическая входная дверь. • Дизайнерские межкомнатные двери цвета Дуб Сонома. • Матовые натяжные потолки. • Плотные виниловые обои пастельных тонов. • Панорамная дверь, стирающая грань между комнатой и балконом. • Витражное остекление балкона с бронзовой тонировкой, которая защищает от солнца и сохраняет вашу приватность. • Увеличенные на 20% окна, пропускающие больше света в квартиру. • Санузел под ключ: ванна с декоративным экраном, удобная раковина с пьедесталом, смесители, полотенцесушитель. На полу керамогранит. • Установлены все радиаторы, выключатели и счетчики. КОМФОРТ Благодаря тому, что фасад дома облицован плиткой с фактурой натурального камня, дом выглядит очень стильно и эстетично. Вы непременно оцените удобные входные группы на уровне земли - вам не придётся подниматься с коляской или с тяжелыми пакетами по ступенькам - всего пару шагов, и вы в подъезде возле лифта. Уютный двор с дизайнерским озеленением, рулонные газоны, клумбы с автополивом, современные детские и спортивные площадки с безопасным покрытием и много свободного пространства благодаря широкой посадке домов. ГИБКИЕ ВАРИАНТЫ ПРИОБРЕТЕНИЯ • ИПОТЕКА СЕМЕЙНАЯ • IT-ИПОТЕКА • РАССРОЧКА • НАЛИЧНЫЙ РАСЧЕТ (предоставляется скидка) • МАТЕРИНСКИЙ КАПИТАЛ • ВСЕ ВИДЫ СЕРТИФИКАТОВ Звоните сейчас и оставляйте заявку, пока действуют выгодные условия по ипотеке! А лучше приезжайте, посмотрите квартиру сами и вы точно в нее влюбитесь!



229 600 ₽/м²
Литер 7, 11 этаж, 124. "Долина" — это современный жилой комплекс на 24 га, сочетающий в себе комфорт и преимущества городской жизни в окружении природы. Здесь ваш день начинается с пения птиц и чистого горного воздуха, а не городского шума. Вся необходимая инфраструктура находится внутри территории, освобождая вас от лишних поездок и экономя время. Отсюда рукой подать до горных маршрутов и ярких впечатлений. Мы нашли идеальный баланс между энергией города и умиротворением природы. Место, где вы по-настоящему отдыхаете душой. Концепция "Город в городе" Все для жизни, учебы и отдыха на территории комплекса Собственный детский сад на 250 мест Своя школа на 1100 мест Физкультурно оздоровительный комплекс на территории Торговые галереи на первых этажах Площадки для детей всех возрастов Все для спорта и здоровья Современная архитектура Просторные холлы Квартиры с терассами Витражное остекление в каждой квартире Комфортные многоуровневые паркинги 16 домов 13-16 этажей 3098 машиномест 88 уникальных планировок Наслаждайтесь каждым днем в атмосфере гармонии и уюта!



221 200 ₽/м²
Литер 7, 2 этаж, 7. "Долина" — это современный жилой комплекс на 24 га, сочетающий в себе комфорт и преимущества городской жизни в окружении природы. Здесь ваш день начинается с пения птиц и чистого горного воздуха, а не городского шума. Вся необходимая инфраструктура находится внутри территории, освобождая вас от лишних поездок и экономя время. Отсюда рукой подать до горных маршрутов и ярких впечатлений. Мы нашли идеальный баланс между энергией города и умиротворением природы. Место, где вы по-настоящему отдыхаете душой. Концепция "Город в городе" Все для жизни, учебы и отдыха на территории комплекса Собственный детский сад на 250 мест Своя школа на 1100 мест Физкультурно оздоровительный комплекс на территории Торговые галереи на первых этажах Площадки для детей всех возрастов Все для спорта и здоровья Современная архитектура Просторные холлы Квартиры с терассами Витражное остекление в каждой квартире Комфортные многоуровневые паркинги 16 домов 13-16 этажей 3098 машиномест 88 уникальных планировок Наслаждайтесь каждым днем в атмосфере гармонии и уюта!



229 600 ₽/м²
Литер 6, 16 этаж, 133. "Долина" — это современный жилой комплекс на 24 га, сочетающий в себе комфорт и преимущества городской жизни в окружении природы. Здесь ваш день начинается с пения птиц и чистого горного воздуха, а не городского шума. Вся необходимая инфраструктура находится внутри территории, освобождая вас от лишних поездок и экономя время. Отсюда рукой подать до горных маршрутов и ярких впечатлений. Мы нашли идеальный баланс между энергией города и умиротворением природы. Место, где вы по-настоящему отдыхаете душой. Концепция "Город в городе" Все для жизни, учебы и отдыха на территории комплекса Собственный детский сад на 250 мест Своя школа на 1100 мест Физкультурно оздоровительный комплекс на территории Торговые галереи на первых этажах Площадки для детей всех возрастов Все для спорта и здоровья Современная архитектура Просторные холлы Квартиры с терассами Витражное остекление в каждой квартире Комфортные многоуровневые паркинги 16 домов 13-16 этажей 3098 машиномест 88 уникальных планировок Наслаждайтесь каждым днем в атмосфере гармонии и уюта!



229 600 ₽/м²
Литер 5, 15 этаж, 124. "Долина" — это современный жилой комплекс на 24 га, сочетающий в себе комфорт и преимущества городской жизни в окружении природы. Здесь ваш день начинается с пения птиц и чистого горного воздуха, а не городского шума. Вся необходимая инфраструктура находится внутри территории, освобождая вас от лишних поездок и экономя время. Отсюда рукой подать до горных маршрутов и ярких впечатлений. Мы нашли идеальный баланс между энергией города и умиротворением природы. Место, где вы по-настоящему отдыхаете душой. Концепция "Город в городе" Все для жизни, учебы и отдыха на территории комплекса Собственный детский сад на 250 мест Своя школа на 1100 мест Физкультурно оздоровительный комплекс на территории Торговые галереи на первых этажах Площадки для детей всех возрастов Все для спорта и здоровья Современная архитектура Просторные холлы Квартиры с терассами Витражное остекление в каждой квартире Комфортные многоуровневые паркинги 16 домов 13-16 этажей 3098 машиномест 88 уникальных планировок Наслаждайтесь каждым днем в атмосфере гармонии и уюта!






81 481 ₽/м²
Арт. 113435265 Продается современная 1-комнатная квартира на 3 этаже! Идеальный вариант для тех, кто ценит комфорт, практичность и удобное расположение! Площадь: 27 кв.м Этаж: 3 из 3 Санузел: совмещённый с душевой — современно и удобно Ремонт: новый, выполнен в актуальном современном стиле — заезжай и живи! Расположение: рядом с домом остановка общественного транспорта — быстро и просто добираться Инфраструктура: необходима вся инфраструктура в стандартной доступности — магазины, аптеки, школы, детские сады, кафе и многое другое. В этом же доме в продаже есть еще три похожие квартиры — идеальный вариант для арендного бизнеса. Отличное предложение по выгодной цене! Позвоните, чтобы узнать все подробности и договориться о просмотре — Ваша квартира ждёт вас!



87 240 ₽/м²
Продается светлая двухкомнатная квартира в девятиэтажном кирпичном доме в районе Черёмушки. Объект предлагает выгодное сочетание цены, удобного расположения и комфортной жилой среды. Планировка квартиры практична и функциональна, а наличие двух застекленных балконов увеличивает полезное пространство и обеспечивает дополнительное естественное освещение. Дом находится в зоне развитой повседневной инфраструктуры: в шаговой доступности расположены супермаркеты "Магнит" и "Пятерочка", что делает ежедневные покупки максимально удобными. Рядом находятся детские сады и школа, а также остановки общественного транспорта с хорошим сообщением. Во дворе организована открытая парковка, территория благоустроена и озеленена. Неподалеку расположен рынок. Состояние квартиры позволяет рассматривать различные варианты использования — как для немедленного заселения, так и для последующего ремонта по собственному вкусу. Цена объекта является конкурентной на рынке, возможен торг при серьезном предложении. Э Код пользователя: 198738 Номер в базе: 12063428
| 🔷 Средняя цена продажи: | 5,7 млн ₽ |
| 🔷 Средняя цена за м2: | 229,6 тыс. ₽/м² |
| 🔷 Минимальная стоимость: | 4,2 млн ₽ |
| 🔷 Самый дорогой объект: | 5,9 млн ₽ |