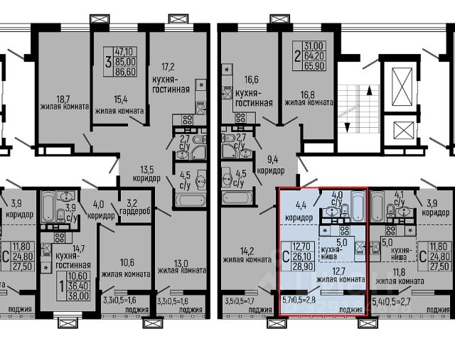
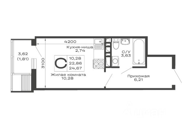
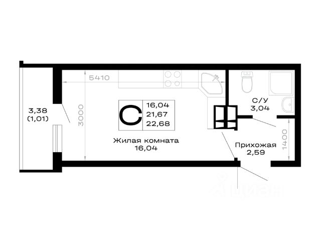
Продаётся студия в строящемся доме (Литер 3), срок сдачи: II-кв. 2027, общей площадью 30.97 кв.м., на 4 этаже.
РАСПОЛОЖЕНИЕ
В 40 минутах от дома расположены такие природные достопримечательности, как предгорье Лаго-Наки, термальные источники, водопады Руфабго, канатная дорога в Даховской слободе, Хаджохская теснина, Азишская пещера и другие красоты.
В 5 минутах от дома находится красивое озеро. Здесь приятно гулять, наслаждаясь красотой природы и чистым воздухом или заниматься спортом.
В шаговой доступности действующая школа и детские сады, продуктовые и хозяйственные магазины, рынок, новая поликлиника. Достраивается школа в 5 минутах от дома на 1100 мест.
Непосредственно на территории ЖК Предгорье Лаго-Наки скоро появятся коммерческие галереи с кафе, кулинарией, салонами красоты, пунктами выдачи интернет-заказов, отделениями банков и пр. Рядом с домом находится остановка общественного транспорта.
ОТДЕЛКА
В квартире вас ждет качественный ремонт под ключ:
• Надежная металлическая входная дверь.
• Дизайнерские межкомнатные двери цвета Дуб Сонома.
• Матовые натяжные потолки.
• Плотные виниловые обои пастельных тонов.
• Панорамная дверь, стирающая грань между комнатой и балконом.
• Витражное остекление балкона с бронзовой тонировкой, которая защищает от солнца и сохраняет вашу приватность.
• Увеличенные на 20% окна, пропускающие больше света в квартиру.
• Санузел под ключ: ванна с декоративным экраном, удобная раковина с пьедесталом, смесители, полотенцесушитель. На полу керамогранит.
• Установлены все радиаторы, выключатели и счетчики.
КОМФОРТ
Благодаря тому, что фасад дома облицован плиткой с фактурой натурального камня, дом выглядит очень стильно и эстетично. Вы непременно оцените удобные входные группы на уровне земли - вам не придётся подниматься с коляской или с тяжелыми пакетами по ступенькам - всего пару шагов, и вы в подъезде возле лифта.
Уютный двор с дизайнерским озеленением, рулонные газоны, клумбы с автополивом, современные детские и спортивные площадки с безопасным покрытием и много свободного пространства благодаря широкой посадке домов.
ГИБКИЕ ВАРИАНТЫ ПРИОБРЕТЕНИЯ
• ИПОТЕКА СЕМЕЙНАЯ
• IT-ИПОТЕКА
• РАССРОЧКА
• НАЛИЧНЫЙ РАСЧЕТ (предоставляется скидка)
• МАТЕРИНСКИЙ КАПИТАЛ
• ВСЕ ВИДЫ СЕРТИФИКАТОВ
Звоните сейчас и оставляйте заявку, пока действуют выгодные условия по ипотеке! А лучше приезжайте, посмотрите квартиру сами и вы точно в нее влюбитесь!