


124 000 ₽/м²
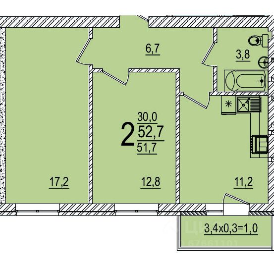
Жилой комплекс "Рокада" - идеальное место для комфортной и современной жизни. Расположен ЖК в центре пгт Яблоновского республики Адыгея. ЖК представляет собой кирпично-монолитные дома высотой 9 этажей со стильным дизайном. Фасады, облицованные кирпичом кофейного и молочного оттенков, придают зданию уникальный и гармоничный вид. На территории комплекса выполнен ландшафтный дизайн, установлена спортивная площадка с тренажерами и специальным мягким покрытием, и детская площадка для игр детей дошкольного и школьного возраста. Внутри жилого комплекса вы найдете дизайнерскую отделку входных групп и современные скоростные лифты, обеспечивающие удобство и комфорт при передвижении. В подвальном помещении для каждой квартиры предусмотрены индивидуальные кладовые, где вы сможете хранить свои вещи. Квартира сдается в предчистовой отделке, со стандартными окнами и потолками высотой 2,75 метра. Особенностью планировки является использование зонального принципа, где выделены зоны дневного пребывания, хозяйственно-бытовые зоны и спальня. В квартире предусмотрен застекленный балкон, что будет являться дополнительным преимуществом. Также комплекс предлагает коммерческие помещения на первом этаже, что обеспечит удобство и доступность необходимых услуг и магазинов для жителей. Жилой комплекс "Рокада" находится вблизи школ, детских садов, медицинских учреждений, аптек и магазинов. Всего в 10 минутах езды от центра города Новая Адыгея, вы сможете наслаждаться всеми преимуществами городской жизни. Не упустите возможность стать счастливым обладателем квартиры в жилом комплексе "Рокада". Здесь вы найдете все, что нужно для комфортной и современной жизни. Квартира в новостройке эконом-класса в Тахтамукайском районе республики Адыгея.

































































































































































