113 898 ₽/м²
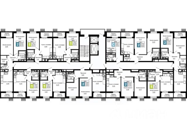
Жилой комплекс "Европейский" расположен в поселке городского типа Яблоновский, который находится в Республике Адыгея. ЖК представляет собой квартал 6,7 га, в состав которого входит четырнадцать восьмиэтажных монолитно-кирпичных зданий эконом-класса. Дома возводятся по кирпично-монолитной технологии строительства. Фасады, облицованные кирпичом красного и молочного оттенков, придают зданию классический и привлекательный вид. Четырнадцать зданий квартала образуют уютное дворовое пространство, в котором предусмотрены: наземный паркинг, детские городки, площадки для занятия спортом и поля для спортивных игр со специальным покрытием, тротуары, газоны и цветники. Квартира сдается в предчистовой отделке, со стяжкой пола, оштукатуренными стенами, металлопластиковыми окнами, входными металлическими сейфовыми дверями, алюминиевыми радиаторами отопления, счетчиками газа, воды, электричества. В каждой квартире "Европейского" установлен двухконтурный газовый котел, обеспечивающий автономное отопление и горячее водоснабжение. На первых этажах зданий размещаются магазины, предприятия услуг, оздоровительные учреждения и офисные помещения с отдельными входами. Расположенный в поселке Яблоновском республики Адыгея, жилой комплекс "Европейский" находится вблизи школ, детских садов, медицинских учреждений, аптек и магазинов. Всего в 10 минутах езды от центра города Новая Адыгея, вы сможете наслаждаться всеми преимуществами городской жизни. Вблизи от ЖК находятся: торговый центр "Мега Адыгея Кубань", в котором работают гипермаркеты "Ашан", IKEA, "Спортмастер", "Леруа Мерлен", множество разнообразных магазинов, каток, картинг, детские аттракционы и игровые площадки, а также торговый центр "Пять звезд", гипермаркеты "Декатлон" и Metro СС. Не упустите возможность стать счастливым обладателем квартиры в жилом комплексе "Европейский". Здесь вы найдете все, что нужно для комфортной и современной жизни. Звоните нам прямо сейчас! Купить квартиру в ипотеку в Тахтамукайском районе республики Адыгея.














































































































