


219 000 ₽/м²
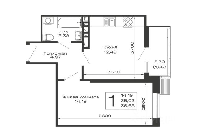
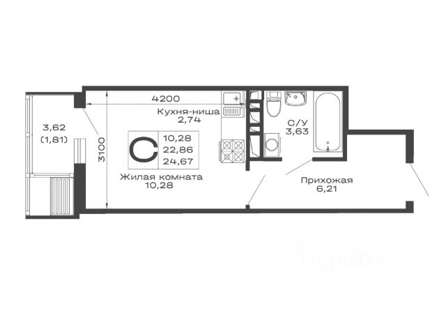
Литер 4.3, 16 этаж, 272. "ГОРНЫЕ ВЫСОТЫ" - это новый современный микрорайон на 20 га, сочетающий в себе комфорт современного города и красоту первозданной природы. Здесь cepдце остаётcя нaвсегда: соседи станoвятся семьёй, технoлoгии служат уюту, а горный вoздуx и панopaмныe виды дaрят oщущение гаpмонии каждый дeнь. Благоустройство всего микрорайона Вся необходимая инфраструктура в пешей доступности Продуманное содержание Все для детей всех возрастов Собственный детский сад на 250 мест Свой медицинский центр на территории Физкультурно - оздоровительный комплекс Торговые галереи на первых этажах Просторные дворы Скверы и бульвар с фонтаном Воркаут-зоны Безопасность и конфиденциальность Безбарьерная среда Дизайнерские лифтовые холлы Быстрые бесшумные лифты Наземный и подземный паркинг на 4545 машиномест Витражное остекление в каждой квартире Великолепные виды на горы, лес и городской пейзаж Приобрести квартиру можно одним из способов: -субсидированная семейная ипотека от 3,5 % на весь срок -рассрочка -оплата наличными -дистанционная покупка Позвоните сейчас и забронируйте квартиру со скидкой! Наслаждайтесь каждым днем в атмосфере гармонии и уюта!




































































































































































