


140 000 ₽/м²
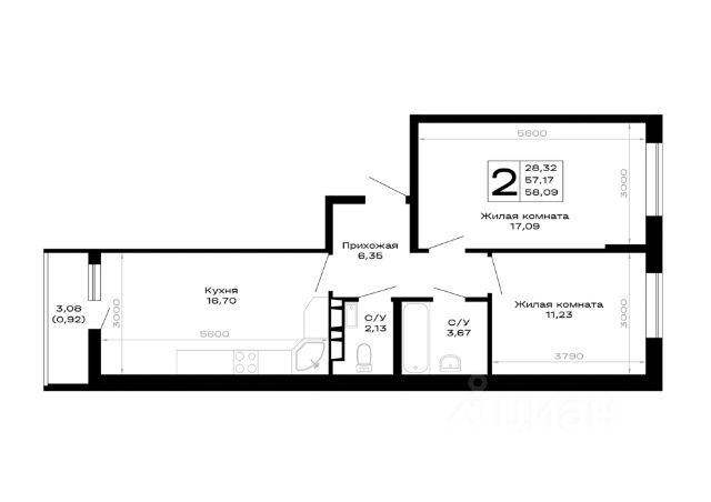
Литер 3, 4 этаж, 12. "Долина" - это современный жилой комплекс на 24 га, сочетающий в себе комфорт и преимущества городской жизни в окружении природы. Здесь ваш день начинается с пения птиц и чистого горного воздуха, а не городского шума. Вся необходимая инфраструктура находится внутри территории, освобождая вас от лишних поездок и экономя время. Отсюда рукой подать до горных маршрутов и ярких впечатлений. Мы нашли идеальный баланс между энергией города и умиротворением природы. Место, где вы по-настоящему отдыхаете душой. Концепция "Город в городе" Все для жизни, учебы и отдыха на территории комплекса Собственный детский сад на 250 мест Своя школа на 1100 мест Физкультурно - оздоровительный комплекс на территории Торговые галереи на первых этажах Площадки для детей всех возрастов Все для спорта и здоровья Современная архитектура Просторные холлы Квартиры с терассами Витражное остекление в каждой квартире Комфортные многоуровневые паркинги 16 домов 13-16 этажей 3098 машиномест 88 уникальных планировок Наслаждайтесь каждым днем в атмосфере гармонии и уюта!































































































































