Первичная продажа


Только на Циан
сдача ГК: 2 кв. 2029 года
5 911 200 ₽
240 000 ₽/м²
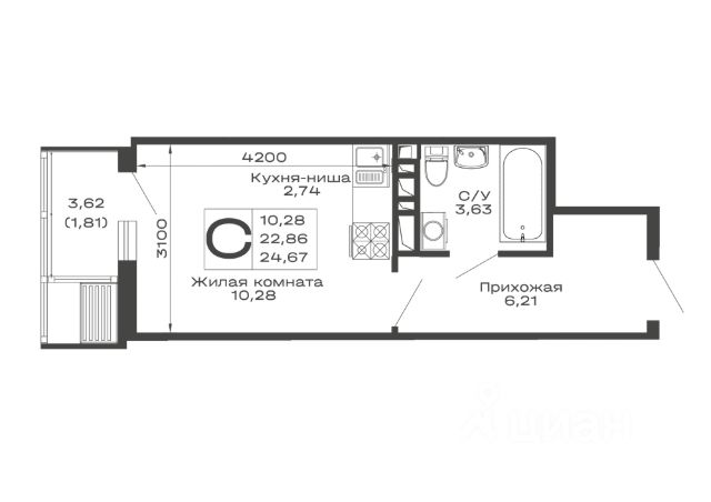
ЭКО-район "Яблоневый" — новое пространство жизни в Майкопе. Здесь сочетаются природная гармония, продуманная архитектура и комфорт современной городской среды. Это не просто жилой комплекс, а точка притяжения для тех, кто ценит качество жизни и спокойный ритм. Масштаб и концепция На территории 23 гектаров формируется полноценный жилой квартал из 16 домов переменной этажности. Пространство спроектировано так, чтобы жителям было удобно жить, отдыхать и развиваться, не покидая район. Среда, в которой хочется жить ЭКО-район создаётся с акцентом на природу и комфорт: просторные дворы без лишнего шума зелёные зоны и прогулочные аллеи современные детские площадки спортивные пространства для активного образа жизни безопасная и удобная территория для всех поколений Функциональность и выбор: Широкий выбор планировочных решений позволит подобрать квартиру под любой сценарий жизни — от первой недвижимости до семейного формата с запасом пространства. Для каждого — своё пространство: Здесь комфортно и детям, и взрослым: игры, отдых, спорт, прогулки — всё продумано так, чтобы каждый житель нашёл своё место. ЭКО-район "Яблоневый" — жизнь в балансе города и природы. Продам квартиру до 6 млн. рублей в Майкопе.





























































































































