Мы используем куки-файлы. Соглашение об использовании
Обновлено: вчера, 17:40
Только на Циан

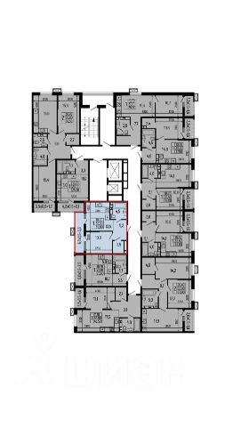
Продается 1-комн. квартира, 39,8 м²

Общая площадь39,8 м²
Жилая площадь10,8 м²
Этаж13 из 13
Год сдачи2027
ДомНе сдан
ОтделкаПредчистовая
Продаётся 1-комнатная квартира в строящемся доме (Дом 10), срок сдачи: I-кв. 2027, общей площадью 39.8 кв.м., на 13 этаже. Новый жилой комплекс "Звезды" от застройщика "СЗ Метрикс Майкоп" расположен по адресу Республика Адыгея, Майкоп, улица К.А. Васильева

О квартире

Тип жилья

Новостройка

Общая площадь

39,8 м²

Жилая площадь

10,8 м²

Высота потолков

2,7 м

Балкон/лоджия

1 балкон

Отделка

Предчистовая

О доме

Тип дома

Монолитно-кирпичный

Пандус

Есть

Понравилась квартира — узнайте о ней больше

Застройщик ответит на все вопросы

Отделка квартиры

Предчистовая — остаётся установить сантехнику, розетки, двери и навести красоту: поклеить обои и уложить на пол покрытие
Похоже на то, что вы ищете?

Акции в ЖК «Звезды»

Узнайте про персональные условия и дополнительные скидки при покупке квартиры у застройщика
Ипотечный калькулятор
  • Базовая
  • Семейная
  • ИТ-ипотека
  • 20%
  • 30%
  • 40%
  • 50%
лет
  • 10 лет
  • 20 лет
  • 30 лет
Загружаем предложения от застройщика и банков
Корпус проверен наш.дом.рф
Обновлено 15 апреля 2026
  • Нет в реестре проблемных объектов
  • Застройщик не банкрот
  • Есть эскроу счёт
  • Актуальные фото стройки

Ещё квартиры в жилом комплексе

382 квартиры в продаже · Сдача в 1 кв. 2027
Агентство недвижимости
МЕТРИКС DEVELOPMENT
  • 7 лет 5 месяцев на Циане
  • 7 642 000 ₽
    Цена за метр
    192 010 ₽/м²
    Условия сделки
    долевое участие (214-ФЗ)
    Агентство недвижимости
    МЕТРИКС DEVELOPMENT