


105 100 ₽/м²
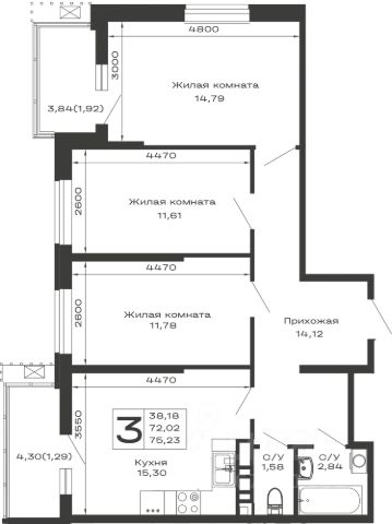
Продаётся 3-комнатная квартира в строящемся доме (Литер 8), срок сдачи: IV-кв. 2026, общей площадью 86.88 кв.м., на 8 этаже. РАСПОЛОЖЕНИЕ В 40 минутах от дома расположены такие природные достопримечательности, как предгорье Лаго-Наки, термальные источники, водопады Руфабго, канатная дорога в Даховской слободе, Хаджохская теснина, Азишская пещера и другие красоты. В 5 минутах от дома находится красивое озеро. Здесь приятно гулять, наслаждаясь красотой природы и чистым воздухом или заниматься спортом. В шаговой доступности действующая школа и детские сады, продуктовые и хозяйственные магазины, рынок, новая поликлиника. Достраивается школа в 5 минутах от дома на 1100 мест. Непосредственно на территории ЖК Предгорье Лаго-Наки скоро появятся коммерческие галереи с кафе, кулинарией, салонами красоты, пунктами выдачи интернет-заказов, отделениями банков и пр. Рядом с домом находится остановка общественного транспорта. ОТДЕЛКА В квартире вас ждет качественный ремонт под ключ: • Надежная металлическая входная дверь. • Дизайнерские межкомнатные двери цвета Дуб Сонома. • Матовые натяжные потолки. • Плотные виниловые обои пастельных тонов. • Панорамная дверь, стирающая грань между комнатой и балконом. • Витражное остекление балкона с бронзовой тонировкой, которая защищает от солнца и сохраняет вашу приватность. • Увеличенные на 20% окна, пропускающие больше света в квартиру. • Санузел под ключ: ванна с декоративным экраном, удобная раковина с пьедесталом, смесители, полотенцесушитель. На полу керамогранит. • Установлены все радиаторы, выключатели и счетчики. КОМФОРТ Благодаря тому, что фасад дома облицован плиткой с фактурой натурального камня, дом выглядит очень стильно и эстетично. Вы непременно оцените удобные входные группы на уровне земли - вам не придётся подниматься с коляской или с тяжелыми пакетами по ступенькам - всего пару шагов, и вы в подъезде возле лифта. Уютный двор с дизайнерским озеленением, рулонные газоны, клумбы с автополивом, современные детские и спортивные площадки с безопасным покрытием и много свободного пространства благодаря широкой посадке домов. ГИБКИЕ ВАРИАНТЫ ПРИОБРЕТЕНИЯ • ИПОТЕКА СЕМЕЙНАЯ • IT-ИПОТЕКА • РАССРОЧКА • НАЛИЧНЫЙ РАСЧЕТ (предоставляется скидка) • МАТЕРИНСКИЙ КАПИТАЛ • ВСЕ ВИДЫ СЕРТИФИКАТОВ Звоните сейчас и оставляйте заявку, пока действуют выгодные условия по ипотеке! А лучше приезжайте, посмотрите квартиру сами и вы точно в нее влюбитесь!





















































































































































