


140 000 ₽/м²
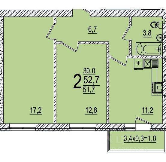
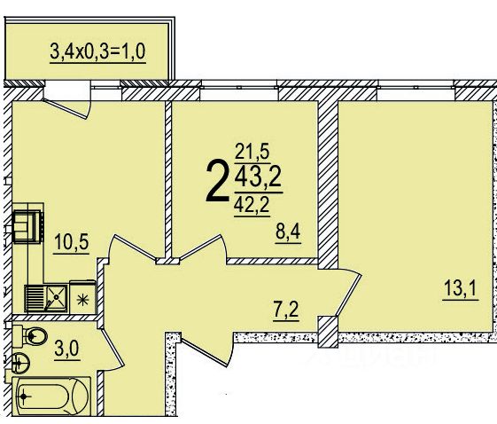
Жилой комплекс состоит из 2 кирпично-монолитных корпусов высотой 16 этажей. Фасады облицованы кирпичом, в подъездах выполнена дизайнерская отделка. На первом этаже предусмотрены помещения для хранения колясок. В каждом корпусе установлены пассажирские и грузовые лифты. В проекте представлены квартиры с 13 комнатами, с панорамными окнами и потолками высотой 2,65 метра. Жилье передается без отделки, в черновом варианте: выполнены базовые строительные работы, включая возведение стен. На стилобатной части комплекса обустроены озелененные дворы, детские и спортивные площадки. Территория организована по концепции без машин. Предусмотрены крытый паркинг на 100 мест и открытая парковка, а также освещенные тротуары. Безопасность обеспечивается видеонаблюдением и контролем доступа на территорию. Для дополнительного комфорта жильцов доступен сервис консьержа и система умного дома. Комплекс расположен в поселке Яблоновский Республики Адыгея. В 5 минутах пешком находится остановка общественного транспорта Космическая улица. В радиусе 515 минут находятся школы, детские сады, кафе, магазины, аптеки, салоны красоты и пункты выдачи. До центра Краснодара, где находятся театры, музеи и культурные достопримечательности, можно добраться за 20 минут транспортом. 2-комнатная квартира от застройщика в Тахтамукайском районе республики Адыгея.





























































































































































